buan architekten

loading ...
buan architekten - Umbau denkmalgeschützter Kiosk Eichhof Luzern - Baustelle
buan architekten - Umbau denkmalgeschützter Kiosk Eichhof Luzern - Situation
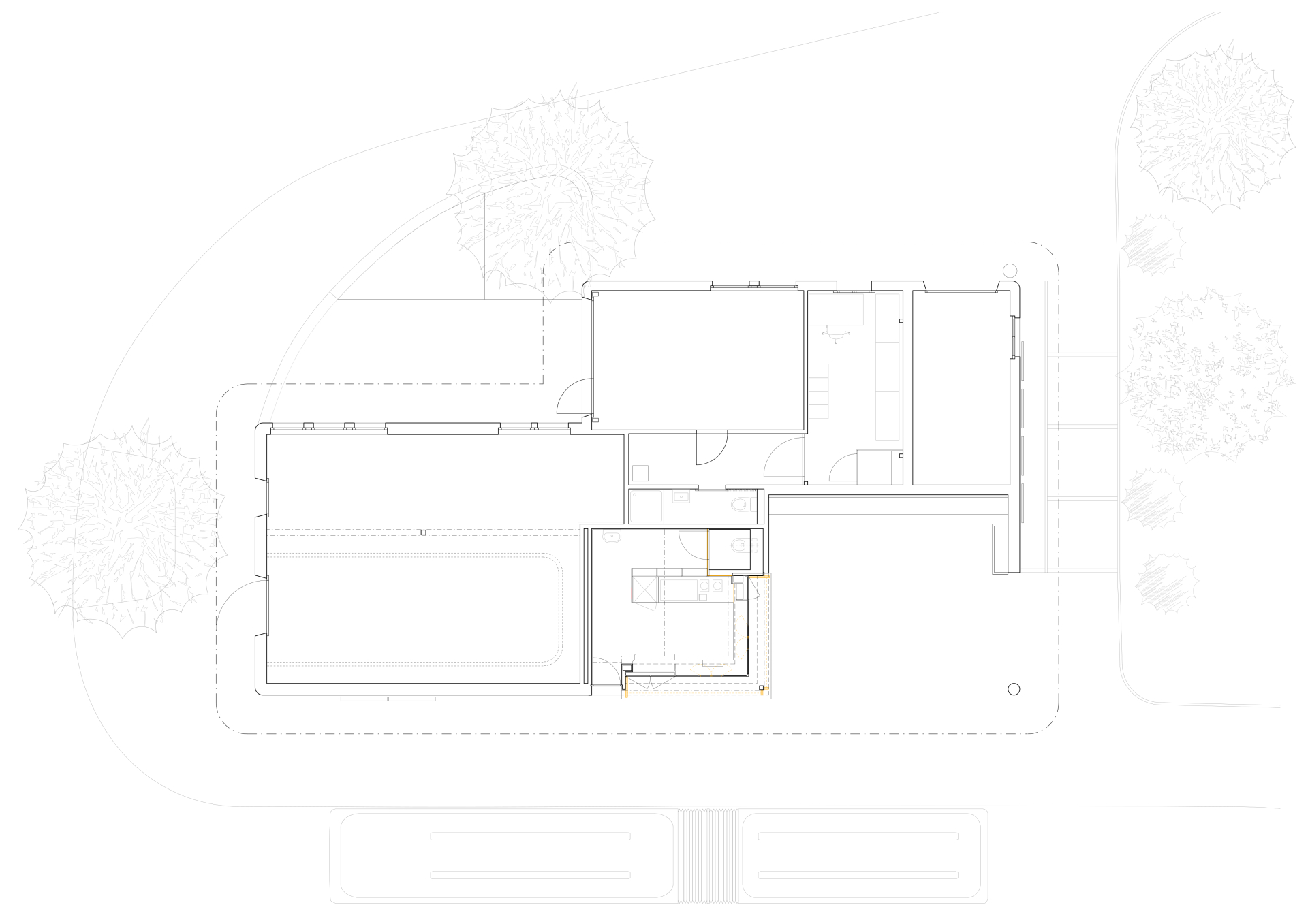
buan architekten - Umbau denkmalgeschützter Kiosk Eichhof Luzern - Grundriss
buan architekten - Umbau denkmalgeschützter Kiosk Eichhof Luzern - Südostfassade
buan architekten - Umbau denkmalgeschützter Kiosk Eichhof Luzern - Südostfassade
buan architekten - Umbau denkmalgeschützter Kiosk Eichhof Luzern - Nordwestfassade
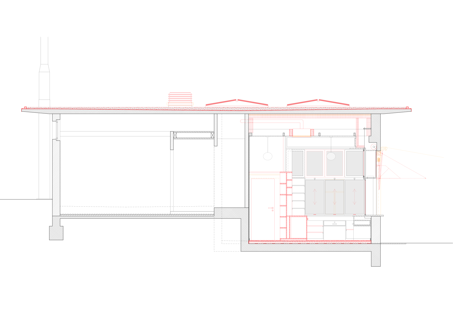
buan architekten - Umbau denkmalgeschützter Kiosk Eichhof Luzern - Detailschnitt
buan architekten - Umbau denkmalgeschützter Kiosk Eichhof Luzern - Kiosk Südostfassade
buan architekten - Umbau denkmalgeschützter Kiosk Eichhof Luzern - GIF Hebefenster
buan architekten - Umbau denkmalgeschützter Kiosk Eichhof Luzern - Detail Hebefenster

info

Kiosk Eichhof, Luzern

Instandsetzung
Direktauftrag
Realisiert

Das Gebäude von Carl Griot Junior zählt architektonisch zu den herausragendsten öffentlichen Kleinbauten der Stadt Luzern. Es stammt aus der Epoche des Neuen Bauens der 1930er-Jahre und zeichnet sich durch eine markante städtebauliche Präsenz an seinem Standort an der Obergrundstrasse aus.
Das Betriebsgebäude – bestehend aus Kiosk, Trafostation und Lagerräumen für das Strasseninspektorat – wurde denkmalpflegerisch sorgfältig restauriert. Die originalen Innenausbauten wurden instandgesetzt und mit neuen, passenden Einbauten ergänzt.
Heute erstrahlt der Kulturkiosk in neuem Glanz und lädt Passant*innen sowie Quartierbewohner*innen zu einem kurzen Halt in der Wartehalle ein – begleitet vom Wandgemälde «Dünkelweiher» des Künstlers Alfred Sidler.

Projektdaten

Bauherr

Stadt Luzern

Beschaffung

Direktauftrag

Jahr

2022 - 2025

Raumprogramm

Gewerbe

Kiosk

Fotos

Philipp Mächler

info