buan architekten

loading ...
buan architekten – Projektwettbewerb Wilisauer Bote – Situation
buan architekten – Projektwettbewerb Wilisauer Bote – Situationsmodell
buan architekten – Projektwettbewerb Wilisauer Bote – Erdgeschoss mit Umgebung
buan architekten – Projektwettbewerb Wilisauer Bote – Grundrisse UG und 1.OG
buan architekten – Projektwettbewerb Wilisauer Bote – Grundrisse 2.-4.OG
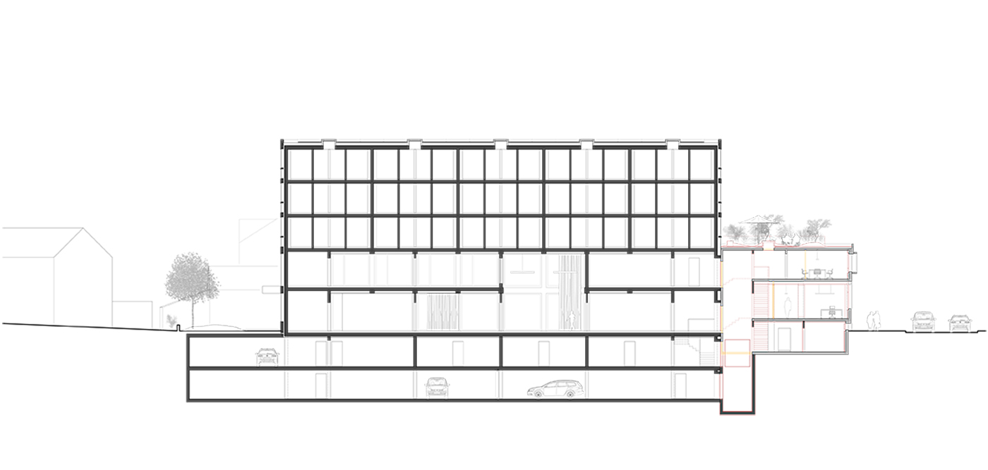
buan architekten – Projektwettbewerb Wilisauer Bote – Querschnitt
buan architekten – Projektwettbewerb Wilisauer Bote – Laengsschnitt
buan architekten – Projektwettbewerb Wilisauer Bote – Ansicht Ostfassade
buan architekten – Projektwettbewerb Wilisauer Bote – Ansicht Suedfassade
buan architekten – Projektwettbewerb Wilisauer Bote – Ansicht Westfassade
buan architekten – Projektwettbewerb Wilisauer Bote – Grundriss Wohnung Typ 1
buan architekten – Projektwettbewerb Wilisauer Bote – Grundriss Wohnung Typ 2
buan architekten – Projektwettbewerb Wilisauer Bote – Fassadenschnitt

info

Willisauer Bote, Willisau

Um- und Neubau
Projektwettbewerb auf Einladung
2.Rang / 2.Preis

Die Zugänglichkeit und Trennung von dem im Raumprogramm geforderten Wohnungen, Räume der Instrumentensammlung und Büroräume der SWS Medien galt es so zu organisieren, dass die Präsenz der Nutzungen im öffentlichen Raum entsprechend gegeben war.

Der Bestandsbau vom Architekten Carl Kramer mit Baujahr 1962/63 wird erhalten und mit wenigen geringfügigen strukturellen Anpassungen saniert und innen wärmegedämmt. Der bestehende rückwärtige Gebäudekomplex resp. dessen Vorgängerbau war bereits beim Bau der erhaltenswerten Baute mit dem damaligen dahinterliegenden Gewerbebau zusammengebaut.

Daraus resultierte der fünfgeschossige Gebäudekörper, welcher direkt am Bestandsbau andockt. Die Fassadenstruktur vom Neubau und deren Gestaltung nimmt gewisse Elemente vom Bestand auf und tritt so in einen Dialog von Alt und Neu.

Projektdaten

Bauherr

SWS Medien AG, Willisau

Beschaffung

Einstufiger anonymer Projektwettbewerb auf Einladung - 2.Rang

Jahr

2021

Landschaftsarch.

extra Landschaftsarchitekten AG, Bern

Raumprogramm

Museum

Instrumentensammlung der Albert-Köchlin-Stiftung (760m² HNF)

Gewerbe

Büroräumlichkeiten der SWS Medien AG (474m² HNF)

Wohnen

15 Mietwohnungen (2½ - 4½ Zimmer)

info

index

index

2025

Mensa Fach- und Wirtschaftsmittelschule, Luzern

Umbau — Direktauftrag — in Bearbeitung

Grabenweg / Flecken, Rothenburg

Gesamtkonzept — Testplanungsverfahren auf Einladung — in Bearbeitung

Wohnüberbauung Jodersmatt, Littau West - Luzern

Neubauten — Studienauftrag auf Einladung — ohne Rang

Wohnüberbauung Sonnenhof Südwest, Emmenbrücke

Neubauten — Studienauftrag auf Einladung — in Bearbeitung

2024

Neukonzeption Lädelihof, Luzern

Studie — Direktauftrag — in Bearbeitung

Mehrfamilienhaus Rämsiweg, Horw

Neubau — Direktauftrag — Bauprojekt

Reiheneinfamilienhaus Eschenrain, Kriens

Umbau — Direktauftrag — Realisiert

Energiezentrale Stadthaus, Luzern

Umbau — Zuschlag über Honorarsubmission — in Bearbeitung

2023

Wohnung Rigistrasse, Luzern

Umbau — Direktauftrag — Realisiert

Wohnhaus Sackhofstrasse, Adligenswil

Ersatzneubau — Direktauftrag — Studie

2022

Studie Sportplatz Weiherhus, Eschenbach

Neubau — Direktauftrag — Studie

Wohnhaus Bachtalen, Emmenbrücke

Ersatzneubau — Direktauftrag — Studie

2021

Reiheneinfamilienhäuser, Eschenbach

Neubau — Direktauftrag — Bauprojekt

Wohnhäuser, Eigenthal

Neubauten — Direktauftrag — Bauprojekt

Generationenhaus, Emmenbrücke

Ersatzneubau — Studienauftrag — 2.Rang

2020

Wohnhaus Erlenquartier, Emmenbrücke

Umbau Einfamilienhaus — Direktauftrag — Bauprojekt

2019

Bäderquartier Baden, Baden

Neubauten — Direktauftrag in Zusammenarbeit mit Mario Botta — Ausführungsplanung

Wohnhaus Badstrasse, Heiden AR

Ersatzneubau — Direktauftrag — Studie

Wohnung Rohnen, Schachen bei Reute

Umbau — Direktauftrag — Bauprojekt

2018

Wohnhaus Sternmattstrasse, Luzern

Umbau Reiheneinfamilienhaus — Direktauftrag — Bauprojekt

Wohnung Steinhofstrasse, Luzern

Umbau — Direktauftrag — Realisiert

2017

Mehrfamilienhäuser Oberdorf, Vitznau

Neubauten — Studienauftrag auf Einladung — juriert

Mehrfamilienhaus Böschenacherweg, Meggen

Neubau — Direktauftrag — Ausführungsplanung

Wohnhäuser Leihgasse, Baar

Neubauten — Direktauftrag — Studie

Wohnüberbauung Chürzi, Schmerikon

Neubauten — Direktauftrag — Studie

2016

Geschäftshaus Oberhofstrasse, Emmen

Umbau — Direktauftrag — Bauprojekt

Erweiterung Schulanlage Erlen, Emmen

Modul- und Neubau — Studienauftrag auf Einladung — juriert

Wohnhaus Nelkenstrasse, Emmen

Neubau — Studienauftrag auf Einladung — 2.Rang